Centro artig. - '11
Scuola media - '11
Centro sportivo - '11
P.za Navigatori - '03
P.zo giustizia - '03
P.zo giustizia - '03
Hangar Aviano - '01
San Gordiano - '11
        
        
        
        
        <
>
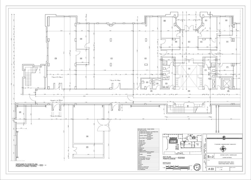
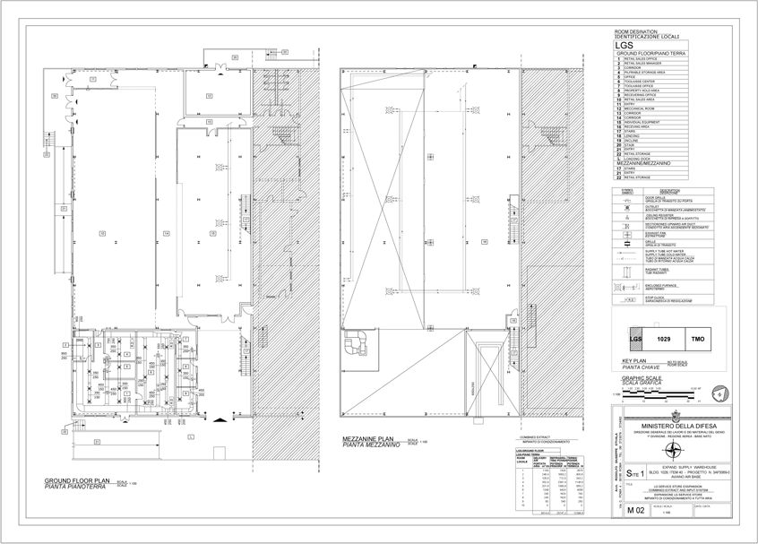
Areoporto di Aviano - Base NATO Ristrutturazione Hangar e nuovi uffici
Incarico: Project Manager sul prog. preliminare, definitivo, esecutivo per conto dello Studio Stivala
Cliente: Nato
Luogo: Aerop. Aviano Italia, € 23.000.000, 1998
Stato: in corso
L'appalto consisteva in quattro interventi:
SITE 1: Ampliamento Hangar esistente per utilizzo a deposito e uffici 4500mq
SITE 2: Realizzazione nuovo Hangar con annessi uffici per l'amministrazione 4200mq
SITE 3: Ristrutturazione e nuova destinazione d'uso Hangar esistenti 3600mq
SITE 4:Ristrutturazione e nuova destinazione d'uso Hangar esistenti 3600mq